天津市河北区人民政府 2019年12月3日星期二

无障碍 无障碍 简体| 繁体 长者模式 长者模式

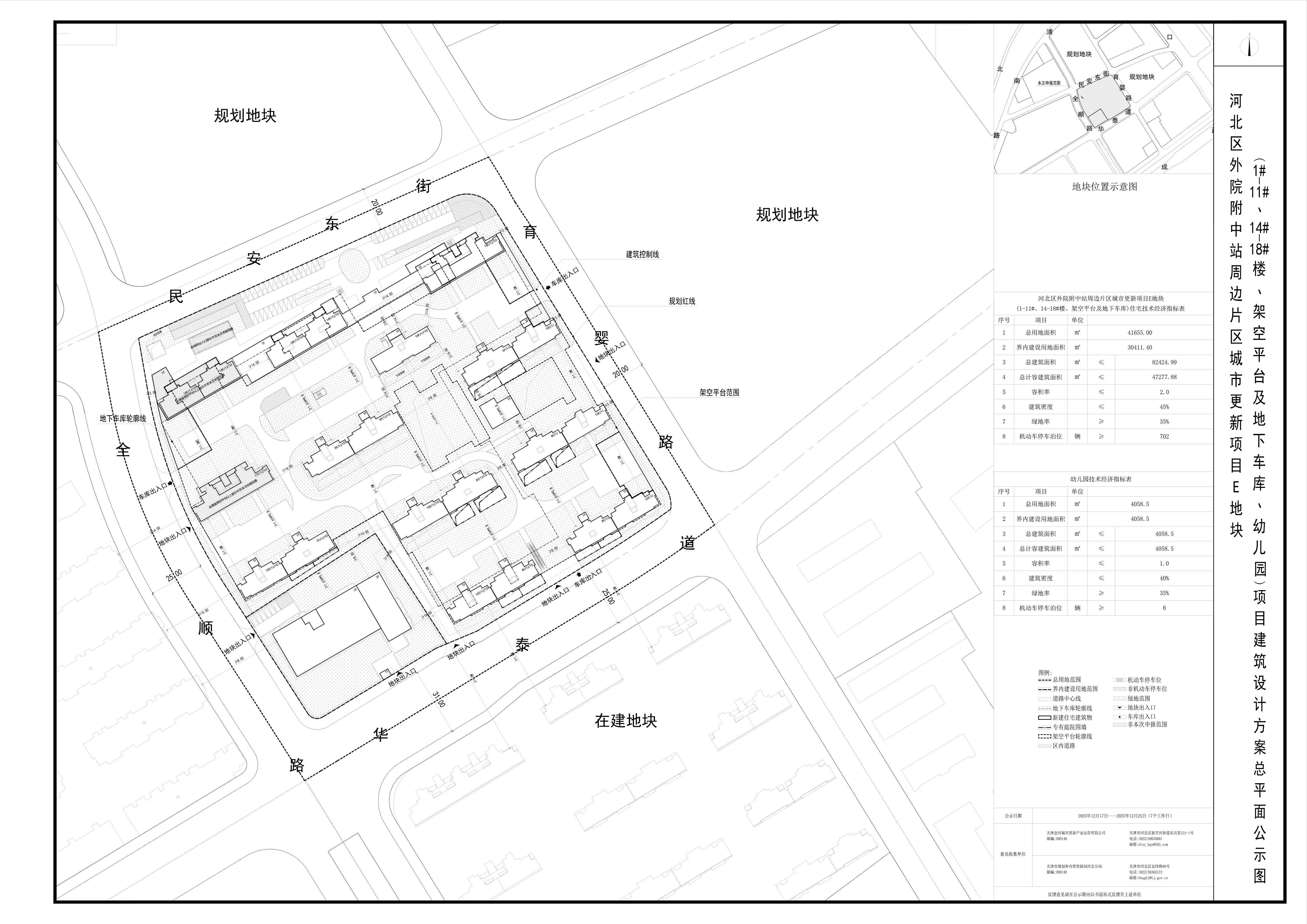
(河北区)关于河北区外院附中站周边片区城市更新项目E地块建设工程设计方案总平面图的公示
来源:天津市规划和自然资源局河北分局 发布时间:2025-12-17 11:54

    依据《中华人民共和国城乡规划法》的有关要求,现将河北区外院附中站周边片区城市更新项目E地块建筑设计方案总平面图进行公示,公示期为7个工作日。

    通讯地址:天津市河北区昆纬路98号

    联系电话:022-58362173    

    邮政编码:300140


天津市规划和自然资源局河北分局    

      2025年12月17日           


附件: