天津市河北区人民政府 2019年12月3日星期二

无障碍 无障碍 简体| 繁体 长者模式 长者模式

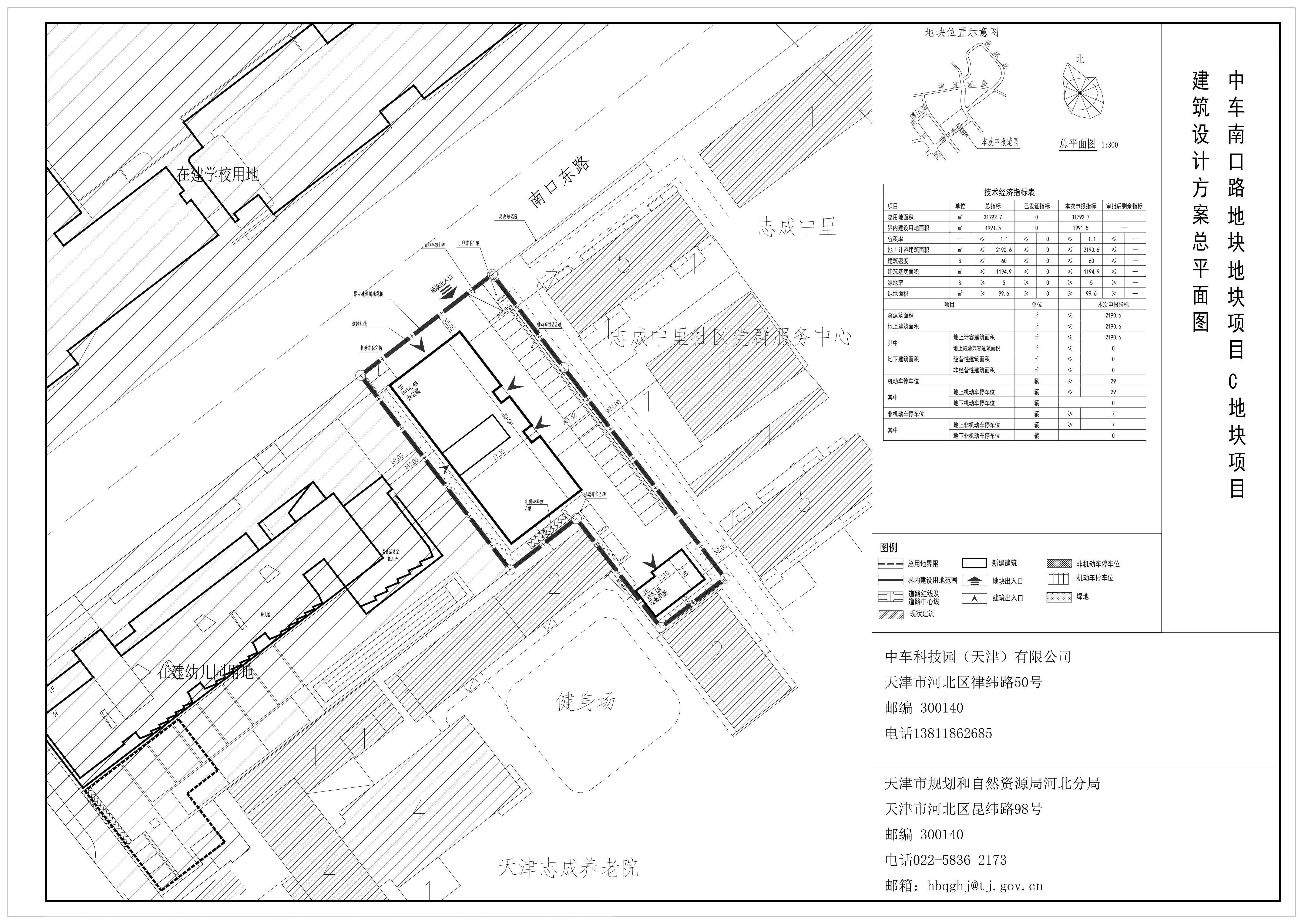
(河北区)关于河北区中车南口路地块项目C地块项目工程建筑设计方案总平面图的公布
来源:天津市规划和自然资源局河北分局 发布时间:2025-10-23 15:59

依据《中华人民共和国城乡规划法》的有关要求,现将关于河北区中车南口路地块项目C地块项目工程建筑设计方案总平面图进行公布,公布期限为信息发布之日起至建设项目规划验收合格为止。


    通讯地址:天津市河北区昆纬路98号

    联系电话:022-58362173

    邮政编码:300140

天津市规划和自然资源局河北分局    

                                                          2025年10月23日