天津市河北区人民政府 2019年12月3日星期二

无障碍 无障碍 简体| 繁体 长者模式 长者模式

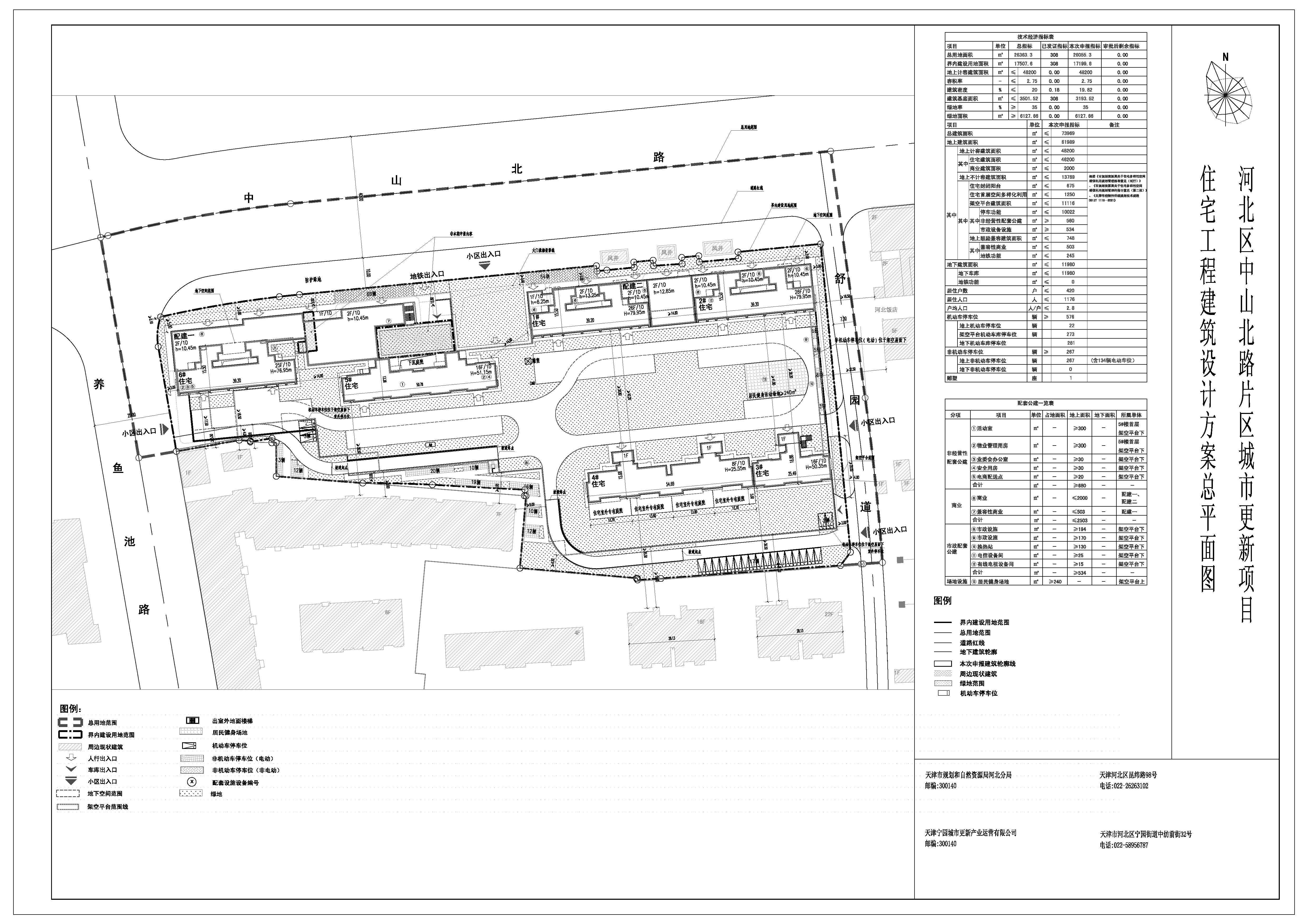
(河北区)关于河北区中山北路片区城市更新项目住宅工程建筑设计方案总平面图的公布
来源:天津市规划和自然资源局河北分局 发布时间:2025-09-25 15:45

依据《中华人民共和国城乡规划法》的有关要求,现将关于河北区中山北路片区城市更新项目住宅工程建筑设计方案总平面图进行公布,公布期限为信息发布之日起至建设项目规划验收合格为止。


    通讯地址:天津市河北区昆纬路98号

    联系电话:022-58362173

    邮政编码:300140

天津市规划和自然资源局河北分局    

       2025年9月25日             


附件: